Leave a Message

By providing your contact information to Mason McCleskey, your personal information will be processed in accordance with Mason McCleskey's Privacy Policy. By checking the box(es) below, you consent to receive communications regarding your real estate inquiries and related marketing and promotional updates in the manner selected by you. For SMS text messages, message frequency varies. Message and data rates may apply. You may opt out of receiving further communications from Mason McCleskey at any time. To opt out of receiving SMS text messages, reply STOP to unsubscribe.

Thank you for your message. We will be in touch with you shortly.

Explore Our Properties

Property Description

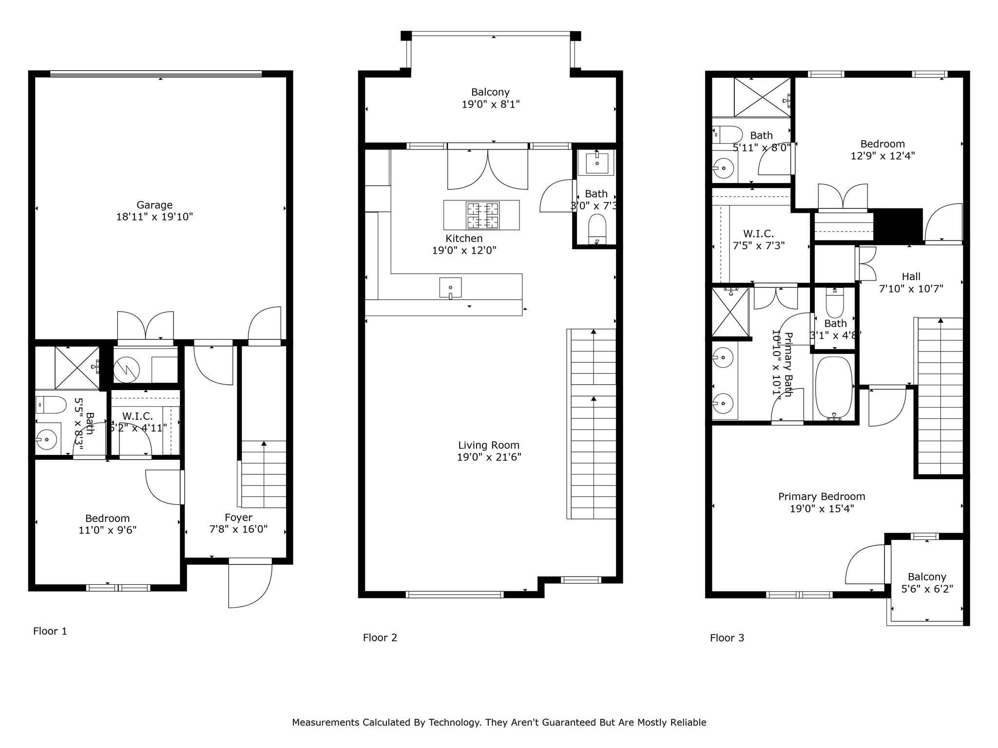
Stunning Santa Barbara townhome style condo within walking distance of Whole Foods and Highland Park Village. Walk up gated courtyard with synthetic grass leads to the front entrance. Handscraped hardwood floors throughout. The first level features a secondary bedroom with ensuite bath and walk-in closet and access to the attached rear entry two car garage with storage closet. The second level provides an open concept living space with large windows and abundant natural light. The large combined living and dining area opens to the kitchen. Kitchen features include granite countertops, stainless steel Viking appliances, an island and a built-in bar area. A spacious covered patio off the second level provides an outdoor retreat. The third level includes the primary suite with a private terrace and ensuite bath offering a tub, walk-in shower and walk-in closet. An additional secondary bedroom with ensuite bath and the laundry closet complete the third level.

Overview

Property Status
Leased
Lot Size
0.92 Acres
MLS ID
20840525
Property Type
Condo
Year Built
2008

Features & Amenities

Architecture Styles
Mediterranean
Stories
3
Garage Spaces
2.0
Water Source
Public
Utilites
Sewer Available, Water Available
Pool
None
Parking
Garage, Garage Door Opener
Heat Type
Central, Natural Gas
Air Conditioning
Central Air, Electric
Appliances
Dishwasher, Electric Oven, Gas Cooktop, Disposal, Refrigerator
Sewer
Public Sewer
Security Features
Security System
Elementary School
Milam
Middle School
Spence
High School
North Dallas
School District
Dallas ISD
Price Upon Request

Downloads

4406 Bowser Avenue 19

Schedule a Tour

We would love to help you see this beautiful home! As a full-service brokerage, we can help you tour. Please submit an offer, and answer questions about the buying process.

Thank you

for your interest in 4406 Bowser Avenue 19, Dallas, TX 75219

4406 Bowser Avenue 19
Navigate

     

4406 Bowser Avenue 19
explore in 3d

I'm Interested In

4406 Bowser Avenue 19

or
  • CallMason McCleskey

    License #0576450

    940.704.2231
  • Browse Our

    Featured Properties

    • 6215 Rex Drive For Sale

      $3,695,000

      6215 Rex Drive, Dallas, TX 75230

      • 5 Beds
      • 7 Baths
      • 7,390 Sq.Ft.
    • 6215 Rex Drive Coming Soon

      $3,695,000

      6215 Rex Drive, Dallas, TX 75230

      • 5 Beds
      • 7 Baths
    • 210 BAY HILL DR For Sale

      $1,299,000

      210 BAY HILL DR, Graford, TX 76449

      • 4 Beds
      • 5 Baths
      • 3,782 Sq.Ft.
    • 4203 Driftwood Drive For Sale

      $840,000

      4203 Driftwood Drive, Wichita Falls, TX 76309

      • 4 Beds
      • 4 Baths
      • 3,391 Sq.Ft.
    • 4203 DRIFTWOOD DRIVE For Sale

      $840,000

      4203 DRIFTWOOD DRIVE, Wichita Falls, TX 76309

      • 4 Beds
      • 4 Baths
      • 3,391 Sq.Ft.
    • 0 Guinn Avenue For Sale

      $595,000

      0 Guinn Avenue, Wichita Falls, TX 76310

    • 0 GUINN AVENUE For Sale

      $595,000

      0 GUINN AVENUE, Wichita Falls, TX 76310

    • 2406 LOU LANE For Sale

      $389,900

      2406 LOU LANE, Wichita Falls, TX 76308

      • 3 Beds
      • 3 Baths
      • 2,526 Sq.Ft.
    • 1527 NORMAN STREET For Sale

      $325,000

      1527 NORMAN STREET, Wichita Falls, TX 76302

    • 713 W MANES AVENUE For Sale

      $299,900

      713 W MANES AVENUE, Iowa Park, TX 76367

      • 5 Beds
      • 2 Baths
      • 1,921 Sq.Ft.
    • 2853 JUDSON CIRCLE For Sale

      $282,500

      2853 JUDSON CIRCLE, Wichita Falls, TX 76308-1069

      • 3 Beds
      • 2 Baths
      • 1,726 Sq.Ft.
    • 2812 COMPTON ROAD For Sale

      $264,900

      2812 COMPTON ROAD, Wichita Falls, TX 76309

      • 4 Beds
      • 2 Baths
      • 1,905 Sq.Ft.
    • 6005 LACI LANE For Sale

      $227,000

      6005 LACI LANE, Wichita Falls, TX 76310

      • 3 Beds
      • 2 Baths
      • 1,345 Sq.Ft.
    • 2834 MILL VALLEY DRIVE For Sale

      $204,000

      2834 MILL VALLEY DRIVE, Wichita Falls, TX 76308

      • 3 Beds
      • 2 Baths
      • 1,693 Sq.Ft.
    • 523 W INWOOD DRIVE For Sale

      $122,500

      523 W INWOOD DRIVE, Wichita Falls, TX 76301

      • 3 Beds
      • 2 Baths
      • 1,558 Sq.Ft.
    • 0 BAY HILL DR For Sale

      $50,000

      0 BAY HILL DR, Graford, TX 76449

    • 0 Bay Hill Drive For Sale

      $50,000

      0 Bay Hill Drive, Graford, TX 76449

    View All Properties

    Follow Us On Instagram